现代风格在近些年越来越受到大家的推崇,大家都开始注重生活品味、注重健康时尚、注重合理科学消费。
尤其是在农村别墅领域,现代风格已经占据了一席之地,今天给您推荐一款三层别墅设计图。

别墅参数
[层数]:三层别墅 [结构形式]:框架结构 [建筑风格]:现代风格
[开间]:12.00m [占地面积]:134.56㎡ [建筑面积]:273.34㎡
[进深]:13.30m [主体造价]:22万~25万万(仅供参考)

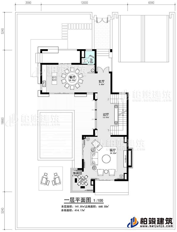
一层:
“禅意”玄关,客厅-餐厅-西厨的“一体化”空间设计,通透大气,尊贵奢华;
配备两层通高全景窗的超大客厅,尽享室外的无限海景及私家庭院空间;
豪华清朗的客卧室尽显主人的待客之道;

闲暇静谧的过厅,合家欢融的家庭厅(可自主加设),悠闲自在的超大露台,无不从空间品质上,体现着设计的人文气质;

奢华的主人套卧,大尺度步入式衣帽间,奢享型的卫浴空间,配以转角窗实现270度海景,这将是“海天一色、贴近自然”的沐浴体验。